Culture House Eemhuis in Amersfoort
Zlokalizowany w pobliżu rzeki Eem na styku pomiędzy częścią mieszkalną, a historycznym centrum Amersfoort obiekt łączy w sobie funkcje biblioteki miejskiej, centrum wystawienniczego, archiwum dziedzictwa narodowego, akademii sztuki oraz szkoły tańca.
Budynek wyróżnia się charakterystyczną rzeźbiarską formą w której widoczne są przede wszystkim trzy wystające bryły, osadzone na wspólnej bazie.
Baza budynku składa się z dwóch części, bryły pełnej, formy pagórka, który pokrywają specjalnie formowane, szkliwione cegły ceramiczne, podkreślające horyzontalny charakter formy oraz bryły przeszklonej z wyrazistymi pionowymi słupami elewacji.
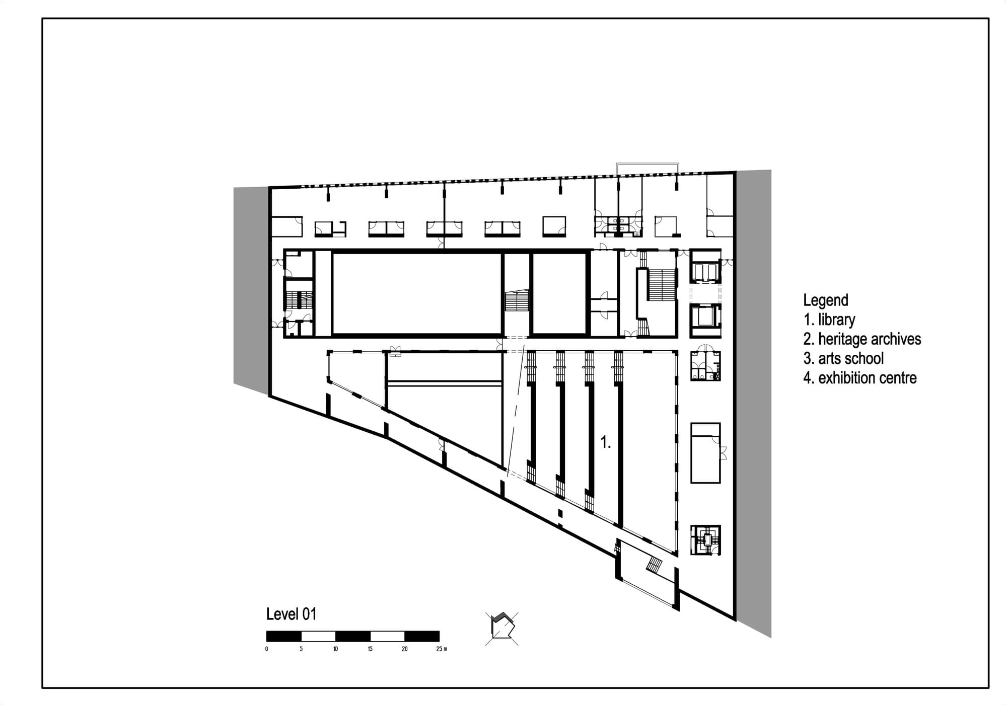
Parter stanowi wewnętrzny plac publiczny, który pozwala na dostępność przestrzeni z każdego kierunku i oferuje funkcje społeczne: strefę wejściową, kawiarnię, centrum wystawiennicze z centralną salą główną i pomniejszymi wokół. Przedłużeniem tego oryginalnego placu miejskiego jest biblioteka, której główna czytelnia wpisana została w tarasową strukturę przestrzenną, zwieńczoną otwartą przestrzenią z regałami i strefami czytelnika. Nad tą przestrzenią znajduje się strefa archiwum, a na poddaszu część przeznaczona dla akademii sztuki. Trzy wydziały sztuki, dedykowane teatrowi i tańcu, sztukom wizualnym oraz muzyce zlokalizowane zostały we wspomnianych wspornikowo wysuniętych bryłach.
Podziały przestrzenne wewnątrz widoczne są w kompozycji brył oraz podkreślone przez wykorzystanie charakterystycznej stylistyki dachów szedowych. Odpowiednio ułożone względem stron świata, pozwalają kontrolować dostęp światła do wnętrz. W połączeniu z błyszczącymi, metalowymi panelami fasady dachy intensyfikują industrialny charakter budynku. Jednocześnie panele elewacyjne odnoszą się do funkcji artystycznej, gdyż same w sobie stanowią jedyne w swoim rodzaju produkty. Płytki udekorowane są wytłoczeniem w formie półkul. Panele pokrywają również spód brył i widoczne są we wnętrzach biblioteki, stając się sufitem otwartej przestrzeni amfiteatralnej czytelni. W niektórych z półkul zamontowane zostało oświetlenie.
Neutelings Riedijk Architects
Obiekt hybrydowy
Holandia, Amersfoort
Centrum miasta
2014
> 8000
16000
Nowy budynek
Kompozycja geometryczna
Otwarty plan czytelni, Sale spotkań, Kawiarnia / restauracja, Sala wielofunkcyjna z płaską podłogą
https://www.archdaily.com/495483/culture-house-eemhuis-neutelings-riedijk-architects


























