Girona Public Library
Budynek zlokalizowany jest wśród gęstej zabudowy mieszkaniowej centrum Girony i jest największą z bibliotek Katalonii. Obiekt miał pełnić nie tylko funkcję edukacyjną, ale stać się miejscem spotkań i interakcji społecznych dla starszych i młodych.
Architekci zdecydowali się zamknąć szeroki program użytkowy w prostopadłościennej czterokondygnacyjnej kubaturze, której charakterystycznymi elementami są wewnętrzne szklane atria. Puntem wyjścia dla architektury było odniesienie do światła, które miało wpływ kształtowanie formy. Atria nie tylko urozmaicają wnętrze, ale ułatwiają dostęp światła naturalnego do pomieszczeń, co nie byłoby możliwe w tradycyjny sposób przy tak dużej wielkości bryły. Taki sposób doświetlenia pozwolił architektom na realizację zewnętrznej fasady z zastosowaniem materiałów o ograniczonej przezierności i tym samym uzyskać efektowny odbiór budynku szczególnie wieczorem. Architektom zależało, aby ze względu na przeznaczenie budynku umożliwić dostęp światła w różnorodny sposób, stwarzając nastrój zarówno do czytania, jak i do spotkań, jednocześnie, aby obiekt przez swoją atrakcyjną w odbiorze elewację mógł stać się nową wizytówką miasta.
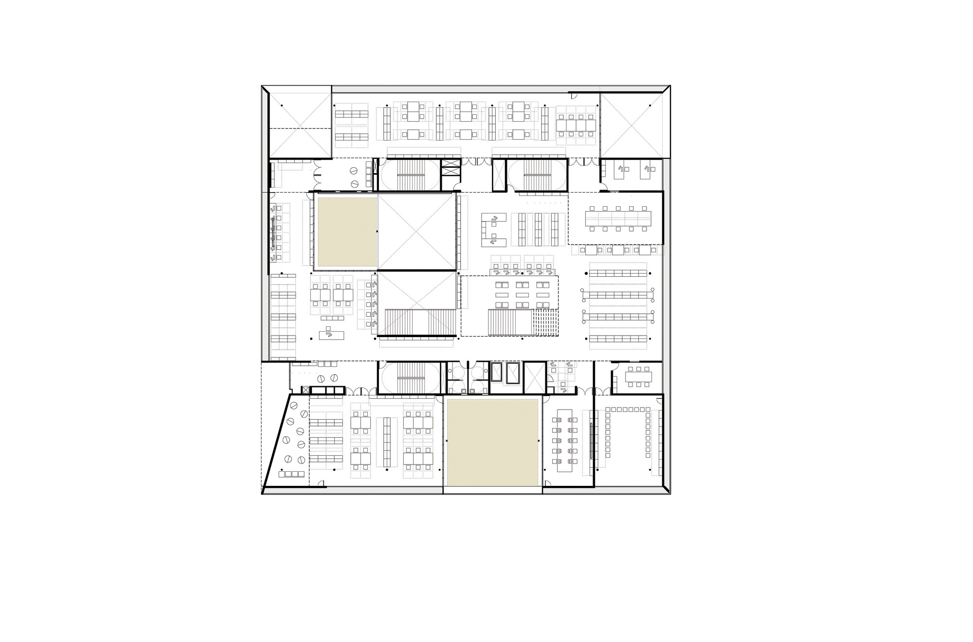
Rzut budynku wykonany został na planie kwadratu. Kondygnacja podziemna przeznaczona została dla administracji i obsługi biblioteki, a trzy naziemne kondygnacje oddane są czytelnikom. Naziemne kondygnacje łączy zlokalizowana w centrum rzutu i wyeksponowana otwarta klatka schodowa. Poszczególne strefy funkcjonalne zorganizowane są wokół wspomnianych trzech kwadratowych atriów. Największy z nich jest również najbardziej rozbudowany, sięga kondygnacji podziemnej, posiada zielony taras i w części ścian ogrody wertykalne. Atrium południowe wyróżnia posadzone w środku drzewo.
Strefa wejściowa budynku zaznaczona jest poprzez odgięcie płaszczyzny elewacji. Parter otwarty jest na plac publiczny i obejmuje foyer z miejscem na wystawy, czytelnie dla dorosłych i dzieci, kawiarnię i salę audytoryjną. Na dwóch górnych piętrach zorganizowane są czytelnie tematyczne oraz obszary zainteresowań, z różnorodnym układem miejsc do czytania, nauki i spotkań.
Przy projektowaniu i realizacji budynku brane były pod uwagę założenia związane z zasadami zrównoważonego rozwoju i biblioteka posiada certyfikat klasy A przyznawany przez Unię Europejską. Architekci zwracali uwagę przede wszystkim na komfort użytkowania, dostęp do światła naturalnego, optymalizację konstrukcji, wykorzystanie materiałów pochodzących z odzysku, stosowanie trwałych i jakościowych materiałów oraz rozwiązania ograniczające zużycie i straty energii.
Corea & Moran Arquitectura
Centrum kultury
Hiszpania, Girona
Centrum miasta
2014
> 8000
8072
Nowy budynek
Bryła atrialna
Otwarty plan czytelni, Pokoje pracy cichej, Sale spotkań, Kawiarnia / restauracja, Sala wielofunkcyjna z płaską podłogą, Mała sala audytoryjna, Kącik dla dzieci
https://www.archdaily.com/586684/girona-public-library-corea-and-moran-arquitectura

































