House for Books and Blues in Notodden
Budynek jest zlokalizowany w Notodden, mieście położonym w obszarze wpisanym na listę dziedzictwa kulturowego UNESCO, charakteryzującym się wyjątkowym krajobrazem gór, wodospadów i dolin rzecznych. Miasto znane jest również z przemysłowo-rolnicznego charakteru. Do fabrycznej estetyki nawiązuje trzykondygnacyjna bryła biblioteki z charakterystycznymi strzelistymi formami wystającymi z głównej kubatury, nadając budynkowi ikoniczny charakter. W mieście znajduje się również jest jeden z najpiękniejszych kościołów w Norwegii prezentujący styl tzw. kościołów klepkowych – Heddal Stavkirke. Nawiązanie do tradycji drewnianej zabudowy widoczne jest również w materiałach fasady, które pokrywają surowe deski, zakładając, że z biegiem czasu ich wierzchnia warstwa będzie patynowała, a obiekt w efekcie szarzał.
Główną ideą koncepcji było stworzenie w ramach jednego obiektu przestrzeni na działanie kilku funkcji, które wraz z zagospodarowaniem miały tworzyć aktywną przestrzeń publiczną miasta. Ze względu na swoją lokalizację na nabrzeżu obiekt zintegrowany jest z przestrzenią zarówno miasta, jak i wody. Zagospodarowanie wykorzystuje wodny potencjał lokalizacji wprowadzając audytorium i scenę na wodzie przy specjalnie wytworzonej niewielkiej marinie.
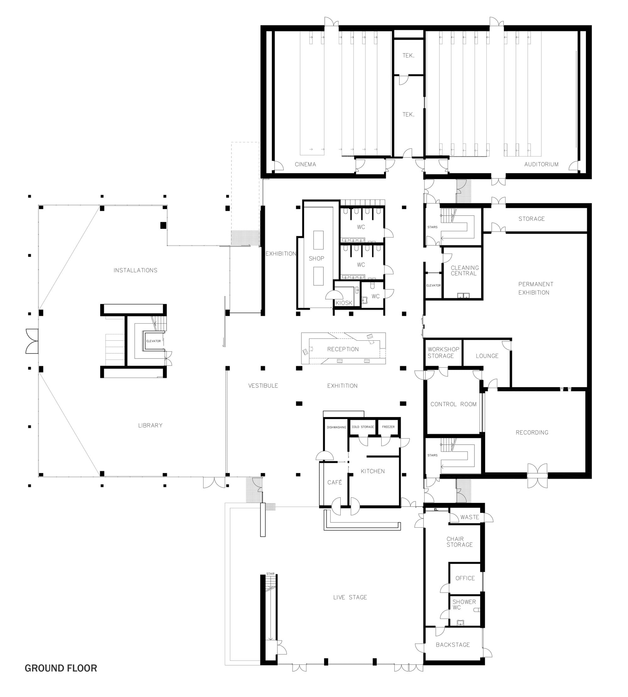
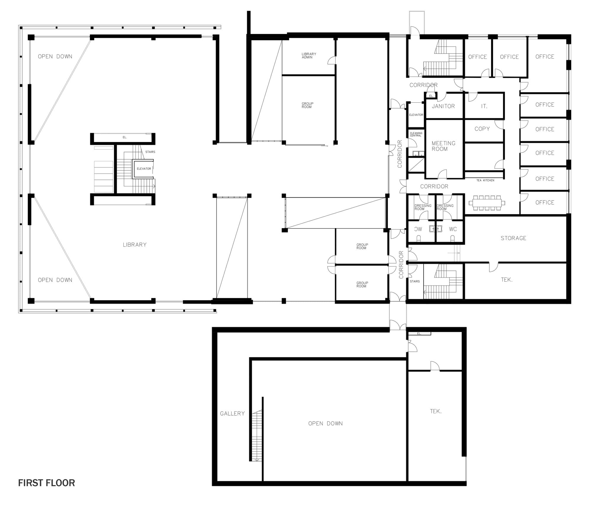
Charakter publiczny budynku widoczny jest w układzie funkcjonalno-przestrzennym, którego centrum stanowi wysoka, otwarta przestrzeń z recepcją, która integruje wszystkie funkcje – bibliotekę, salę audytoryjną, salę kinową, salę koncertową i muzeum historii bluesa. Organizacja rzutu została o oparta o ideę zamkniętych na planie prostokąta autonomicznych brył. Każda z nich ma odmienną funkcję, a przez rozsunięcia względem siebie naturalnie tworzą się wąskie trakty komunikacyjne.Takie rozmieszczenie jest również metaforą miejskiej zabudowy.
Biblioteka zajmuje jedną z brył, obejmując trzy piętra zaaranżowane na otwartym planie. Bryła z muzeum na wyższych piętrach mieści strefy administracji i muzyczną z salami prób, dźwiękową i studiów nagraniowych. Sala koncertowa ma charakter interferencyjny i otwiera się na zewnątrz, dzięki mobilnym ścianom fasady. Umożliwia to organizację plenerowych wydarzeń artystycznych i kulturalnych.
Architektom zależało, aby kompozycja bryły była ściśle powiązana z oświetleniem, które w różny sposób, w zależności od funkcji miało być obecne w budynku. Światło wpuszczane przez trzy główne, strzeliste formy miało dodatkowa funkcje punktu orientacyjnego w przestrzeni. Część głównych, dużych przeszkleń w budynku jest dodatkowo osłonięta materiałami o ograniczonej transparentności, aby zmiękczyć promienie słoneczne, uzyskując bardziej komfortowe warunki do czytania i nauki.
Wnętrza kontynuują industrialną estetykę, eksponując surowe materiały: betonową strukturę konstrukcji, przemysłowy charakter parkietu i sufity podwieszane z płyt akustycznych z wełny drzewnej.
Børve Borchsenius Arkitekter and Askin / Lantto Arkitekter AS
Obiekt hybrydowy
Norwegia, Notodden
Centrum miasta
2013
4000 - 8000
5225
Nowy budynek
Kompozycja geometryczna
Otwarty plan czytelni, Sale spotkań, Kawiarnia / restauracja, Sala wielofunkcyjna z płaską podłogą, Mała sala audytoryjna, Naturalne materiały
https://www.archdaily.com/922919/house-for-books-and-blues-borve-borchsenius-arkitekter















